BUSINESS
220kV主变设计
选择主变台数、容量及型号;根据设计原始资料要求,选择2-3个可能采用的主接线方案、从技术可靠性,经济合理性等方面进行综合分析比较,确定一种较合理的主接线方案 ,说明主接线的主要运行方式;确定无功补偿的方式,如需采用电力电容器进行补偿(1.选择补偿电容器的容量及接线方式,2.选择电力电容器的型号及数量);选择所用变压器的容量、台数及接线方式;确定主变压器中性点的运行方式。若需装设消弧线圈,应选择消弧线圈的容量、台数及型号;配电装置的规划、短路电流的计算、主要电气设备的选择、变电所的防雷规划并配置主接线中的常规避雷器、配置继电保护及自动装置,任选一条低压侧架空线的继电保护整定计算。对设计成品要求的设计规定。
设计案例

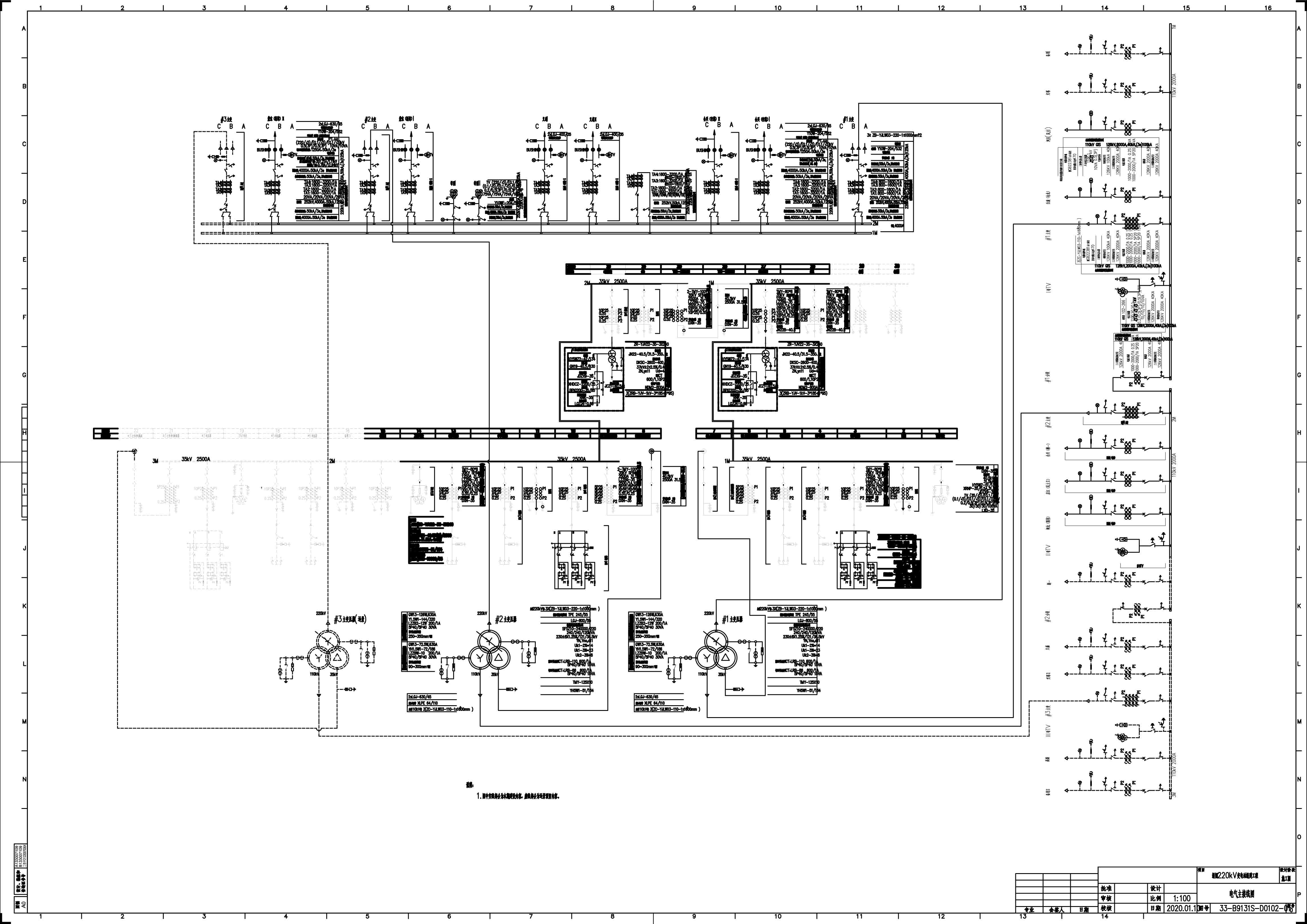
新围220kV变电站新建工程部分设计图
110kV主变设计
适用于单台变压器容量5000kVA及以上的新建、扩建和改造工程的变电站设计。应根据工程的5年~10年发展规划进行,做到远、近期结合,应以近期为主,正确处理近期建设与远期发展的关系,并应根据需要预留扩建的可能;应从全局出发,统筹兼顾,按负荷性质、用电容量、环境特点,结合地区发展水平,合理地确定设计方案;应坚持节约资源、兼顾社会消音的原则;除应符合本规范外,尚应符合国家现行有关标准的规定。
设计案例

华东医药江东项目二期电气一次部分施工图
35KV主变设计
变电站是电力系统的重要组成部分,它直接影响整个电力系统的安全与经济运行,是联系发电厂和用户的中间环节,起着变换和分配电能的作用,电气主接线是发电厂变电所的主要环节,电气主接线的拟定直接关系着全厂电气设备的选择、配电装置的布置、继电保护和自动装置的确定,是变电站电气部分投资大小的决定性因素。变电站是把一些设备组装起来,用来切断、接通、改变或者调整电压的。在系统中,变电站成了输电和配电的集结点。
设计案例

华普环保35kV工程设计平面图
20kV主变设计
适用于交流电压为20kV及以下的新建、扩建和改建的变电工程的变电所设计。20kV及以下变电所设计应根据工程特点、负荷性质、用电容量、选址环境、供电条件、节约电能、安装、运行和维护要求等因素,合理选用设备和确定设计方案,并应考虑发展的可能性,变电所的选址应根据技术经济等因素综合分析和比较后确定(宜接近负荷中心、接近电源侧、应方便进出线、应方便设备运输,不应设在有剧烈振动或高温的场所、不宜设在多尘或者腐蚀性物质的场所、不应设在厕所、浴室、厨房或其他经常积水场所的正下方处等)。电气部分(主接线、变压器、所用电源、操作电源、预装式变电站等)的设计规范。
设计案例

浙江萧虞新能源科技有限公司配电房施工平面图
本规范适用于交流电压10kV及以下新建、扩建或改建工程的变电所设计,应根据工程特点、规模和发展规划,正确处理近期建设和远期发展的关系,远近结合,以近期为主,适当考虑发展的可能。变电站是电力系统的重要组成部分,它直接影响整个电力系统的安全与经济运行,是联系发电厂和用户的中间环节,起着变换和分配电能的作用。电气主接线是发电厂、变电所的主要环节,电气主接线的配电设计服务。
设计案例

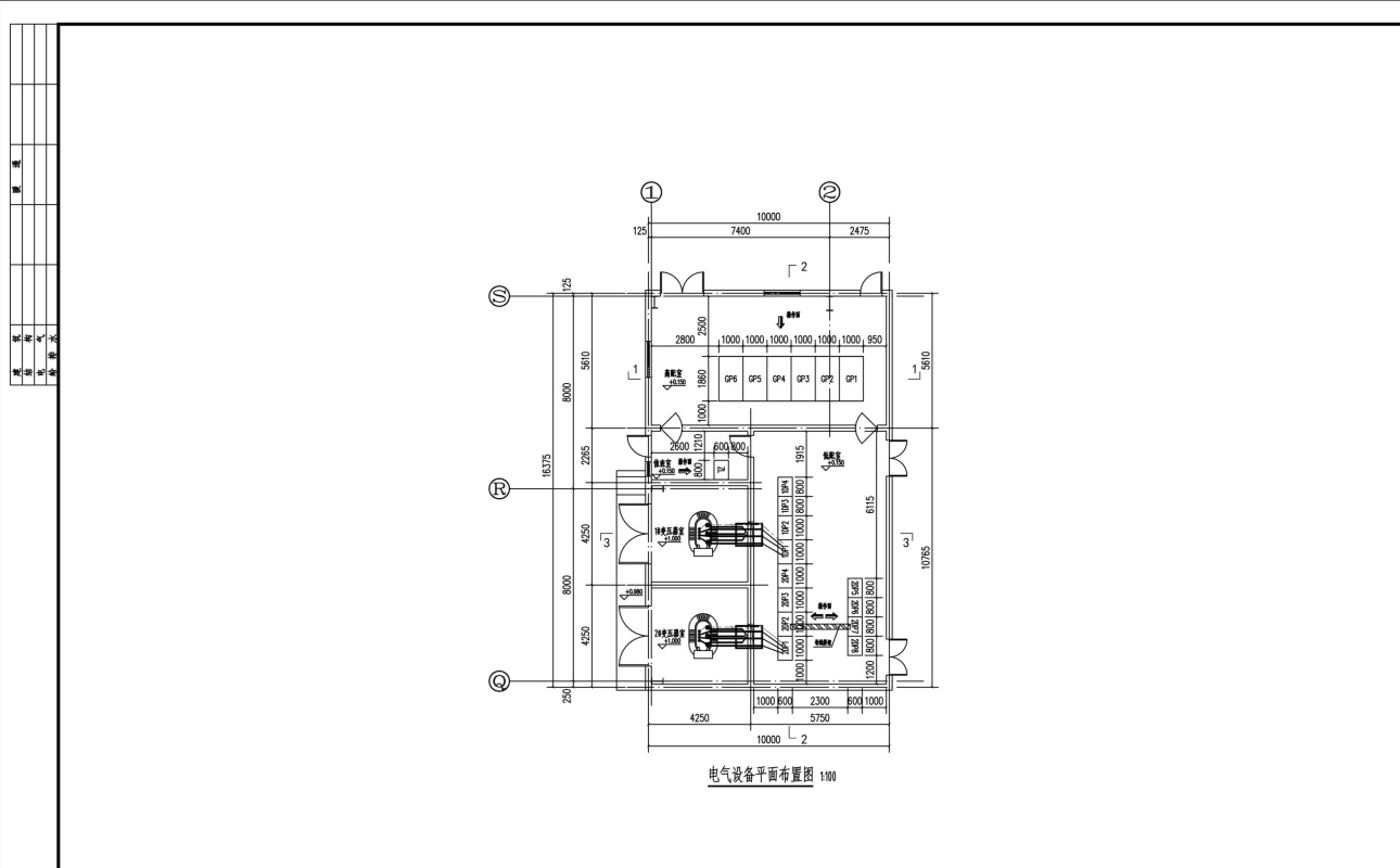
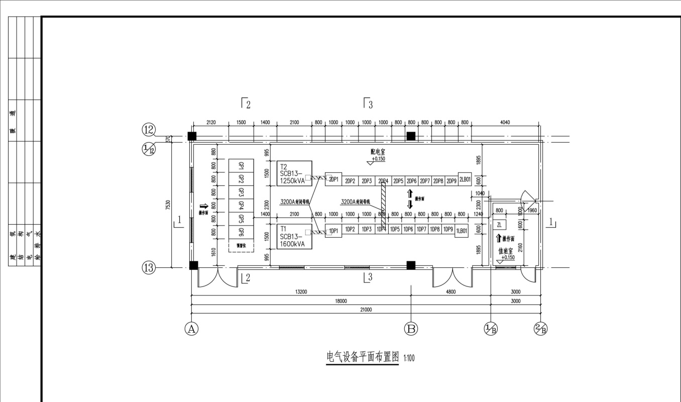
绍兴鼎记印染科技有限公司电气设备平面布置图
小区公配房、开关柜设计
住宅小区供电设施是城市配电网的重要组成部分,应纳入配电网统一规划,与住宅小区建设及周围环境相协调,统一技术标准、统一管理。小区内部一般使用电缆线路,采用开关站、开闭所供电的配电室、配电站等室内配电设施供电,一般不采用箱式变供电。
开关柜(又称成套开关或成套配电装置),它是以断路器为主的电气设备,是指生产厂家根据电气一次主接线图的要求,将有关的高低压电器以及母线、载流导体、绝缘子等装配在封闭的或敞开的金属柜体内,作为电力系统中接受和分配电脑的装置。高压开关设备:主要用于发电、输电、配电和电能转换的高压开关以及和控制、测量、保护装置、电气联结、外壳、支持件等组成的总称。开关柜设计防护要求中的“五防”:防止误分误合断路器、防止带电分合隔离开关、防止带电合接地开关、防止带接地分合断路器、防止误入带电间隔。
设计案例
1
摘
要
变电站是电力系统的重要组成部分,
它直接影响整个电力系统的安全与经济
运行,
是联系发电厂和用户的中间环节,
起着变换和分配电能的作用。
电气主接
线是发电厂变电所的主要环节,
电气主接线的拟定直接关系着全厂电气设备的选
择、
配电装置的布置、
继电保护和自动装置的确定,
是变电站电气部分投资大小
的决定性因素。变电站是把一些设备组装起来,用来切断、接通、改变或者调整
电压的。在系统中,变电站成了输电和配电的集节点。